Aller au contenu
Accueil
Agences
Projets
Tous les projets
Aménagements urbains
Parcs & Jardins
Lotissements & ZAC
Voiries & réseaux divers
Sports
Actualités
Carrière
Accueil
Agences
Projets
Tous les projets
Aménagements urbains
Parcs & Jardins
Lotissements & ZAC
Voiries & réseaux divers
Sports
Actualités
Carrière
NOUS CONTACTER
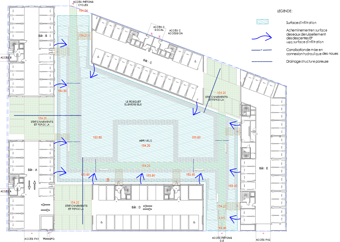
ZAC Rive Gauche – Ilot E
Aménagements urbains
>
Résidentialisations
ZAC Rive Gauche – Ilot E
Maitre d’ouvrage :
PROMOTION PICHET
Paysagiste :
Agence August
Architecte :
Baumschlager Eberle
BET :
OAK, CAPEM, QUB
Caractéristiques :
6 260 m²
Budget :
440 000,00 € HT pour les VRD
En études
Agence(s) :
Metz
Projets similaires
Réceptionné
en janvier 2026
Cours d’école – Groupes scolaires Jules Verne, Arc en ciel, Louis Pergaud
Aménagements urbains
>
Groupes scolaires
Metz (F-57)
Réceptionné
en novembre 2025
Construction d’un groupe scolaire, d’un périscolaire et d’une salle multi activités
Aménagements urbains
>
Groupes scolaires
Oberhausbergen (F-67)
Réceptionné
en août 2025
Cœur de vie
Aménagements urbains
>
Coeurs de ville
Eschau (F-67)
Réceptionné
en février 2025
Place de l’Eglise
Aménagements urbains
>
Coeurs de ville
Gingsheim (F-67)
Réceptionné
en janvier 2025
Groupe scolaire et accueil périscolaire
Aménagements urbains
>
Groupes scolaires
Mommenheim (F-67)
Réceptionné
en octobre 2024
Réhabilitation de la Manufacture des Tabacs
Aménagements urbains
>
Coeurs de ville
Strasbourg (F-67)
Réceptionné
en septembre 2024
Végétalisation de la cour d’école Marbeau
Aménagements urbains
>
Groupes scolaires
Le Plessis-Trévise (F-94)
Réceptionné
en septembre 2024
Construction d’un groupe scolaire et accueil périscolaire
Aménagements urbains
>
Groupes scolaires
Schwindratzheim (F-67)
Réceptionné
en septembre 2024
Groupe scolaire rue Jean Mentelin
Aménagements urbains
>
Groupes scolaires
Strasbourg-Koenigshoffen (F-67)
Réceptionné
en juillet 2024
Parc des Expositions
Aménagements urbains
>
Coeurs de ville
Strasbourg – Wacken (F-67)
Réceptionné
en juillet 2024
Cours d’école Eurométropole de Strasbourg – Langevin
Aménagements urbains
>
Groupes scolaires
Strasbourg (F-67)
Réceptionné
en juillet 2024
Aménagements extérieurs d’un groupe scolaire, périscolaire et associatif
Aménagements urbains
>
Groupes scolaires
Richardménil (F-54)
Réceptionné
en mai 2024
Cour d’école élémentaire
Aménagements urbains
>
Groupes scolaires
Longeville-les-Saint-Avold (F-57)
Réceptionné
en mai 2024
Aménagement du parvis et du carrefour de la mairie
Aménagements urbains
>
Coeurs de ville
Entzheim (F-67)
Réceptionné
en novembre 2023
Aménagement du macro-lot 7 du quartier Lizé
Aménagements urbains
>
Résidentialisations
Montigny-lès-Metz (F-57)
Réceptionné
en octobre 2023
Place Hauger
Aménagements urbains
>
Coeurs de ville
Mulhouse (F-68)
CloseMenu
Accueil
A propos
Lollier Ingénierie
Nos certifications
Projets
Tous les projets
Aménagements urbains
Parcs & Jardins
Lotissements & ZAC
Voiries & réseaux divers
Sports
Actualités
Contact
+33 (0)3 88 51 47 93
contact@lollier.com
3 rue de Mittelhausen
67170 MITTELSCHAEFFOLSHEIM
Strasbourg
3 rue de Mittelhausen
67170 MITTELSCHAEFFOLSHEIM
+33 (0)3 88 51 47 93
contact@lollier.com
Paris
7 avenue Jacques Cartier
77600 BUSSY-SAINT-GEORGES
+33 (0)1 49 24 99 16
contact.paris@lollier.com
Metz
11 rue du Jardin d'Ecosse
57530 ARS-LAQUENEXY
+33 (0)3 72 39 61 95
contact.metz@lollier.com
Dijon
2 rue du Rompot
21121 FONTAINE-LES-DIJON
+33 (0)3 73 27 56 06
contact.dijon@lollier.com